Brattlof Residence Addition

Major Addition and Historical Renovation

In Collaboration with Joshua Allen Design - https://www.joshuaallendesign.com/

Sterling, MA

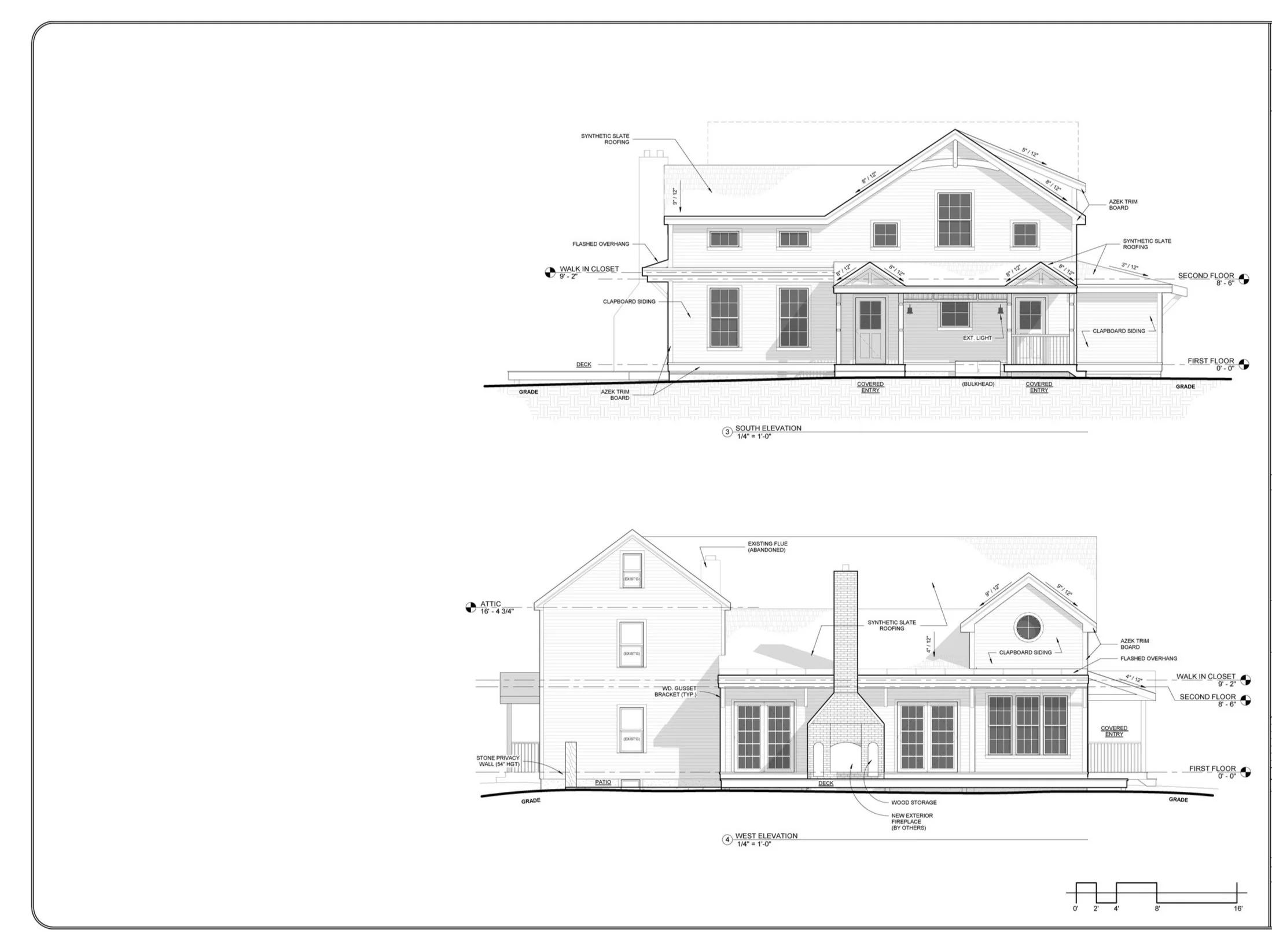
Major addition and full renovation of an early 1800s colonial. Construction totaling 4,000 SF, involving the demolition of early 1900s addition and gutting of the entire house. Large addition with loft above integrating with an existing post and beam great room which will open up to a massive outdoor entertainment area.

LMG Scope : Exterior/Structure Design Services, Collaboration with Interior Designer, Permit Drawings, and Consulting

Year : 2022-Present

Status : In Construction